Villa te koop in Benitachell | Ref.: 7000

€ 890 000,00

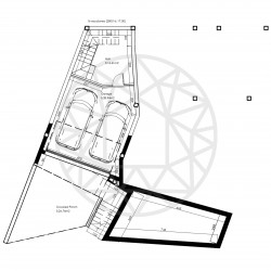
Nieuw gebouwde villa te koop in Benitachell, in de urbanisatie Vall del Portet, gelegen in een bevoorrechte omgeving met uitstekende verbindingen naar het historische centrum, een centrale ligging en gemakkelijke toegang tot de naburige steden Moraira, Jávea en Teulada. Het beschikt ook over een kustlijn van bijna 3 Km met indrukwekkende kliffen en afgelegen baaien. Deze moderne woning maakt deel uit van een exclusief privécomplex, waar luxe en elegantie samenkomen om droomhuizen te creëren die speciaal voor u zijn ontworpen. Geniet van een prachtig uitzicht op zee, de Peñón de Ifach (symbool van de Costa Blanca), rust en de hele dag zon (Zuidoriëntatie). Het heeft een totale bebouwde oppervlakte van 290 m2 verdeeld over 2 verdiepingen en een kelder, als volgt: op de begane grond hebben we een inkomhall (10 m2), 1 gastentoilet, wasruimte, 1 slaapkamer (15 m2) met een en-suite dressing en toegang tot het buitenterras, 1 complete badkamer en-suite en een fantastische woonkamer-eetkamer-keuken (samen 54 m2, open concept), die in verbinding staat met een veranda (28 m2) die op zijn beurt overgaat in een groot buitenterras (69 m2), waar we een zwembad, een barbecue en een chill-outruimte hebben. Op de bovenverdieping hebben we een hal, 2 slaapkamers (16 m2 + 12 m2) met hun en-suite dressing en toegang tot een privéterras en 2 en-suite badkamers. In de kelder hebben we een hal en een garage (29 m2) met directe toegang tot het pand. Het is voorzien van vloerverwarming (lucht-water warmtepompsysteem, minimaal verbruik, maximaal rendement), airconditioning (individueel in elke kamer), een ventilatiesysteem, een audiosysteem, een fotovoltaïsch systeem, hoogwaardig buitenschrijnwerk, design binnenschrijnwerk, een volledig uitgeruste moderne keuken, design badkamers en meer. Het beschikt ook over een grote pergola (21 m2) voor een parkeerplaats. De tuin is prachtig en onderhoudsarm. Deze avant-gardistische woning onderscheidt zich door het ontwerp, de lichte ruimtes, de rust en het prachtige uitzicht op zee.

Ref: 7000TBV

Voor meer informatie over deze woning, neem contact op met Sapphire Invest.

Sapphire Invest - uw vastgoed makelaar in Moraira, Javea, Benissa, Calpe en Altea - Costa Blanca - Spanje.

Sapphire Invest is er trots op één van de beste onroerend goed makelaars aan de Costa Blanca te zijn.

Laat uw e-mailadres achter en wij bezorgen u meer informatie over dit project!

Kenmerken

 Villa -  Benitachell -  Vall del Portet -  Naar de zee -  290 m2 -  130 m2 - Slaapk 3 -  4 -  Open -  2026 -  Zuid -